Language
日本語 English 简体中文 繁體中文 한국어

Rooms

Rooms

Currently displayed page
GRANBELL HOTEL OTARU TOP > Rooms > Universal

Universal

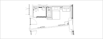
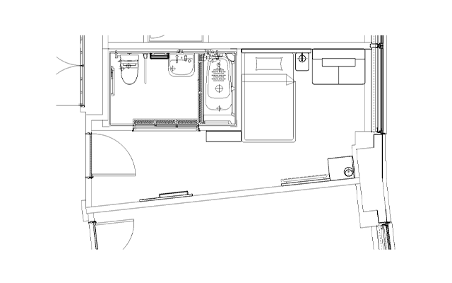
Barrier-free rooms located on the 2nd and 3rd floors. There are no steps inside the room, so elderly guests and guests using wheelchairs can stay comfortably. The bathroom and toilet are equipped with handrails, making this a Universal designed room that anyone can use with peace of mind. There is also space under the bed to store suitcases and other items.

Basic Information
Size 21㎡
Bed width 110cm x 1 + sofa bed
Capacity 2名
remarks All rooms are non-smoking

Layout diagram

Enlarged layout diagram

Book this room

Common facilities for all guest rooms

TV (internet available) / Free high-speed internet (Wi-Fi) / Refrigerator / Electric kettle / Telephone / Safe / Hair dryer / Hangers / Bedside outlet / Toilet with washlet / Dream Bed "Serta" bed / AI smart speaker / Individual air conditioning

Amenities

Bath towels / toothbrushes / shampoo / conditioner / body soap / hairbrush / razor / shaving cream / slippers / nightwear / children's amenities (toothbrushes, slippers, pajamas)

*Nightwear is available in three sizes.
(L: 125cm, S: 120cm, Children's: 84cm)
Since this is a standard size, there may be slight errors.

Rental equipment (free)
*Limited quantity

Wheelchair / Trouser press / Air purifier / Humidifier / Iron / Hair iron (straight & curl) / Charger

Check-in/Check-out

Check-in: 15:00 / Check-out: 11:00

Accepted Credit Cards

We accept VISA, JCB, Mastercard, AMEX, UC, DC, NICOS, Diners Club, and UnionPay. For other cards, please contact the hotel.

Cancel

In accordance with our hotel's accommodation agreement, we will charge a cancellation fee of 20% of the basic accommodation fee if you cancel the day before, 80% if you cancel on the day, and 100% if you do not show up. However, cancellation regulations may differ depending on the plan. Please check the details of each plan.

Facilities and Services

Room List

Back to top of page

+81-134-64-7573